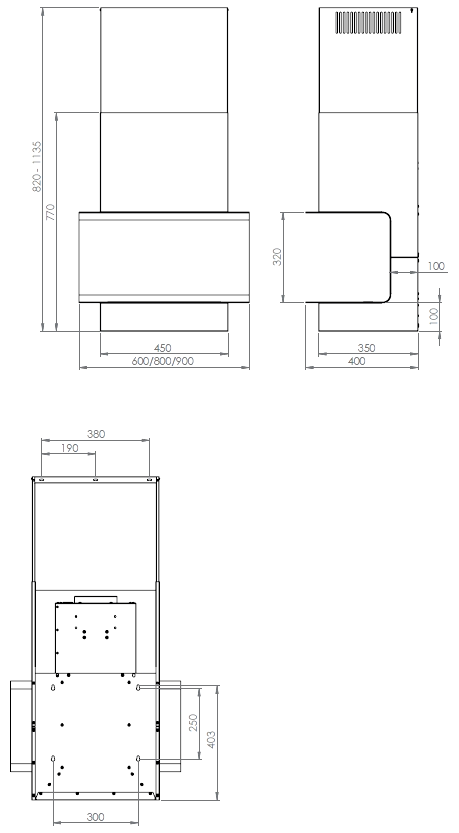
Digestor komínový C-Shelf White-Kashmir

https://nortberg.sk/c-shelf-white-kashmir-dizajnovy-nastenny-digestor-s-policou.html